Дом с полумансадным этажом КОРАЛЛ
Цена коробки:
4545722 р.
Цена проекта:
45500 р.
Общая площадь:
143 м2
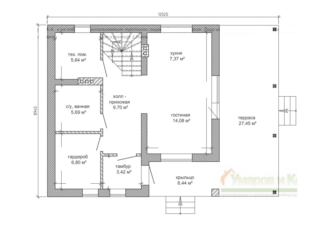
Размеры дома:
8,94 х 12 м
Этажей:
2
Гараж:
Срок строительства:
дней
- Комплектация
- Планировка
- Ход строительства
«Коралл» - двухэтажный дом с просторной крытой террасой и балконом.
Состав помещений
| 1 этаж | тамбур, холл-прихожая, с/у-ванная, техническое помещение, гардероб, гостиная, кухня, крыльцо и терраса | |
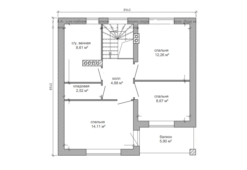
| 2 этаж | холл, с/у-ванная, кладовая-гардероб, 3 спальни |
Используемые материалы
| Фундамент | ленточный монолитный железобетонный на буронабивных сваях | |
| Стены цоколя | рядовая кирпичная кладка с армированием | |
| Стены наружные | газобетонные блоки D500, 400 мм. | |
| Фасады | цоколь выполнен из красного рядового кирпича под отделку камнем. | |
| Перекрытия | по деревянным балкам | |
| Крыша | полумансардная | |
| Кровля | металлочерепица |
Состав проекта (ведомость чертежей), лист, наименование
- Ведомость чертежей
- Общие данные
- Планировка 1 этажа
- Планировка 2 этажа
- Разрез по высотам - 1
- Разрез по высотам - 2
- Фасад спереди
- Фасад справа
- Фасад слева
- Фасад сзади
- План ростверка
- План свайного поля
- Сечение по ростверку и свае
- План кладки цоколя
- Кладочный план 1 этажа
- Узел усиления "Узел А"
- План балок перекрытия 1 ярус
- Привязка опорной балки перекрытия
- План балок перекрытия 2 ярус
- Кладочный план 2 этажа
- Кладочный вид спереди
- Кладочный вид справа
- Кладочный вид слева
- Кладочный вид сзади
- Кладочный разрез 1-1
- Кладочный разрез 2-2
- Кладочный узел Б
- Кладочный разрез 3-3
- План кровли
- План раскладки мауэрлата
- План стропильной части
- Кровельный разрез Кр-1-Кр1
- Кровельный разрез Кр-2-Кр2
- Кровельные узлы К1, К2 и К3
- Кровельные узлы К4, К5 и К6
- Кровельные узлы К7, К8 и К9
- Полная калькуляция работ и материалов в текущих ценах (примерно 5 листов)



